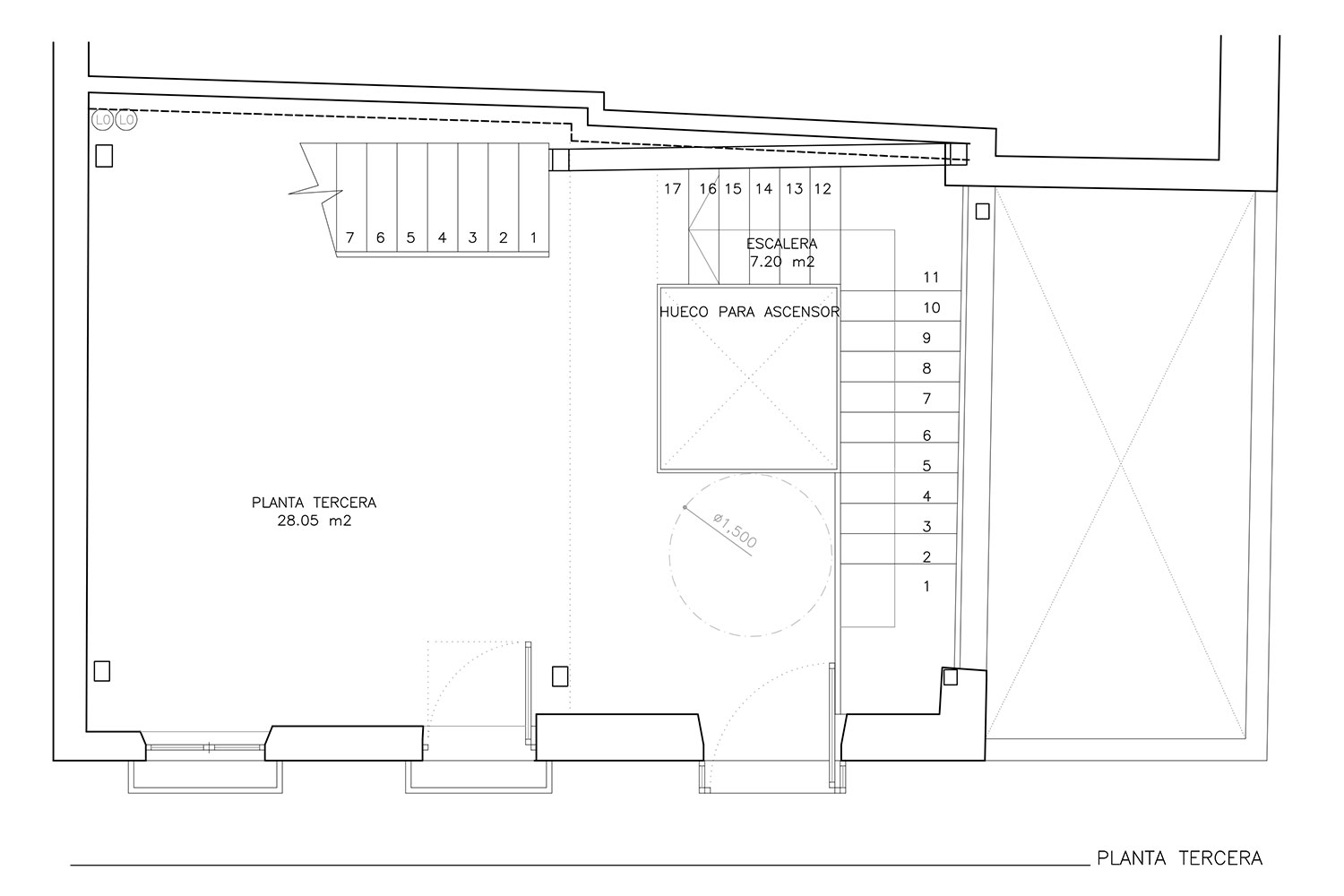
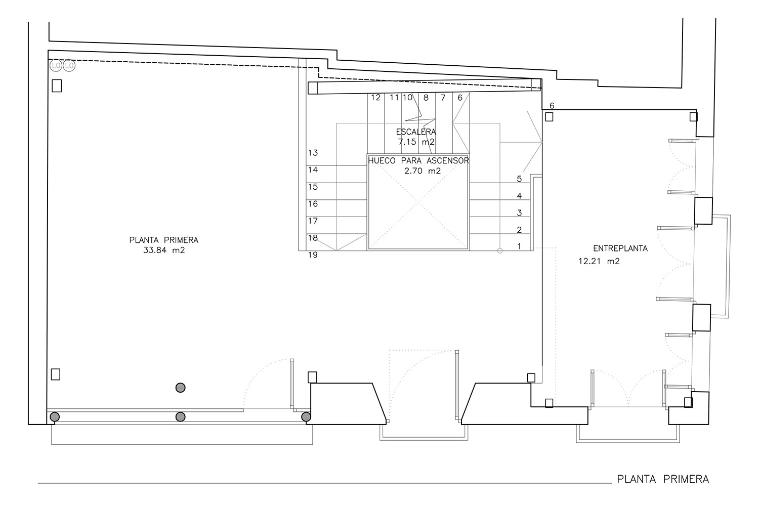
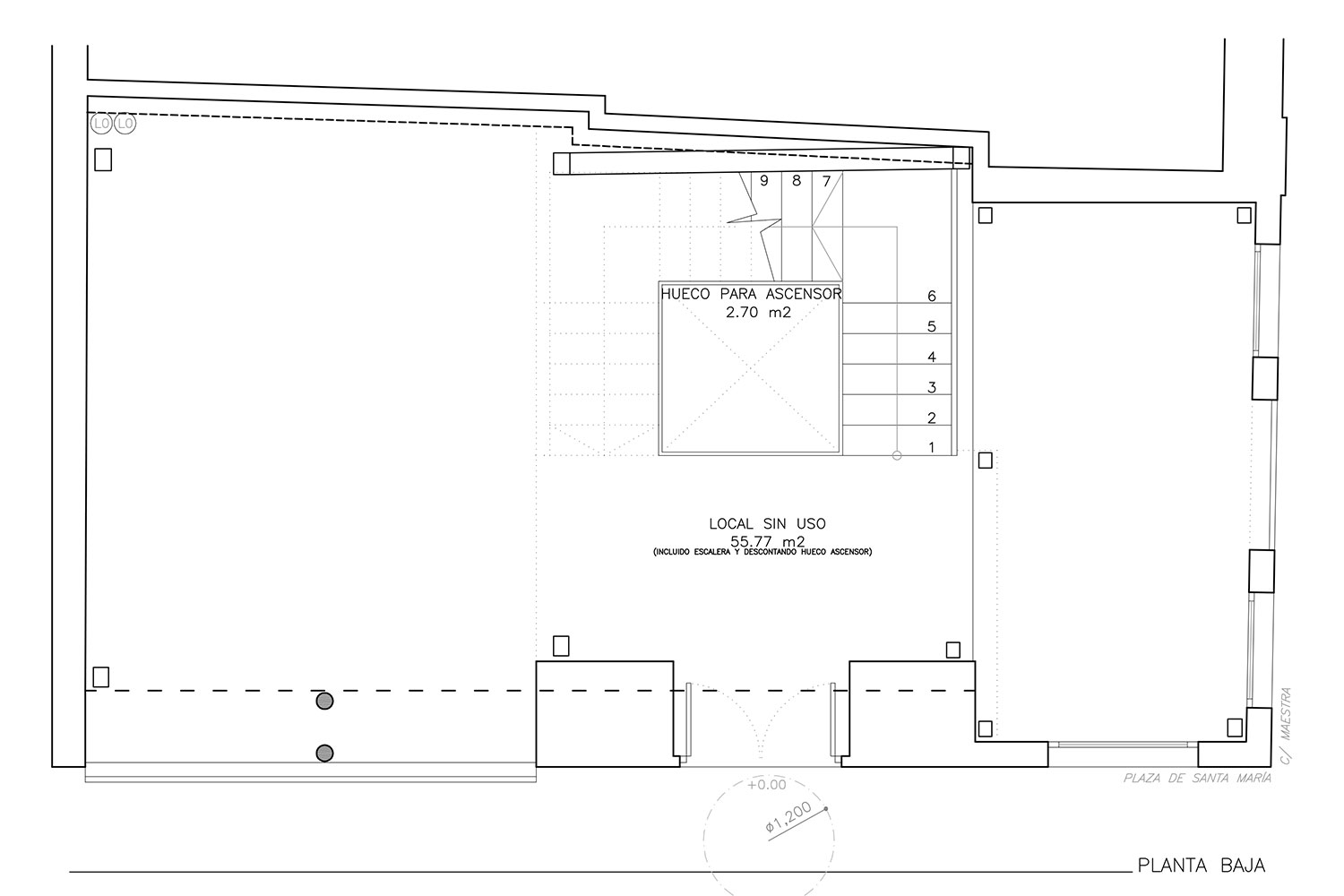
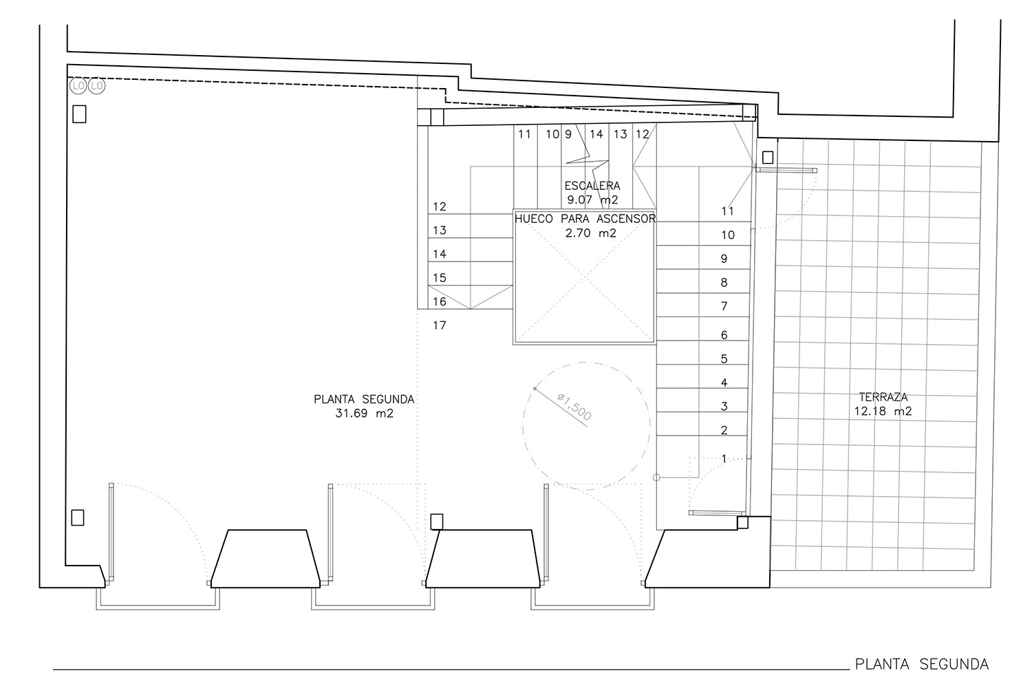
Casa del Reloj. Apartamentos y local comercial

Plaza Santa María, 4 – Calle Maestra, 1 - Jaén