Inicio
Estudio
Proyectos
Proyectos Administrativos
Proyectos Culturales
Proyectos Deportivos
Proyectos Educativos
Proyectos Urbanismo
Proyectos Industriales
Proyectos Residencial
Proyectos Sanitario-Asistenciales
Clientes
Contacto
Idioma
Contacto
+34 661 439 965
El Molar
Home
El Molar
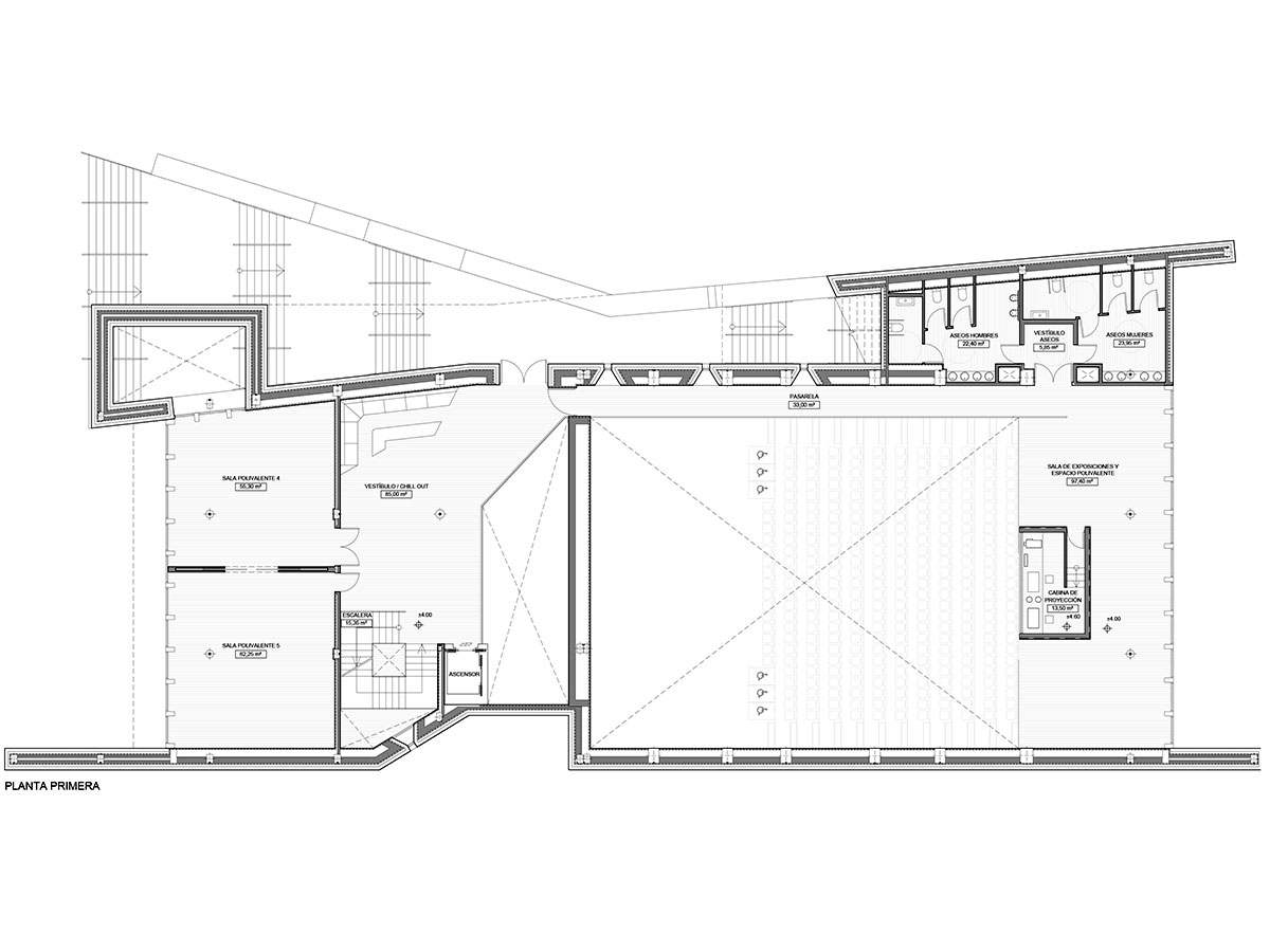
Centro Cultural del Ayuntamiento de El Molar
C/ San Isidro - El Molar (Madrid)
Inicio
Estudio
Proyectos
Proyectos Administrativos
Proyectos Culturales
Proyectos Deportivos
Proyectos Educativos
Proyectos Urbanismo
Proyectos Industriales
Proyectos Residencial
Proyectos Sanitario-Asistenciales
Clientes
Contacto
Idioma