Inicio
Estudio
Proyectos
Proyectos Administrativos
Proyectos Culturales
Proyectos Deportivos
Proyectos Educativos
Proyectos Urbanismo
Proyectos Industriales
Proyectos Residencial
Proyectos Sanitario-Asistenciales
Clientes
Contacto
Idioma
Contacto
+34 661 439 965
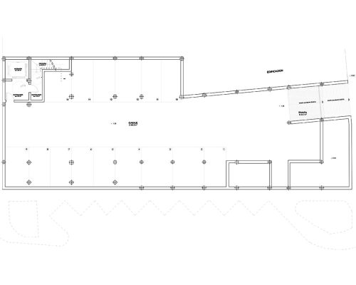
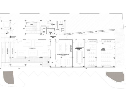
Multifuncional San José
Home
Multifuncional San José
Edificio Multifuncional en San José
C/ Félix Duarte Pérez 40 - C/ El Madroño. Breña Baja – La Palma - Santa Cruz de Tenerife
Inicio
Estudio
Proyectos
Proyectos Administrativos
Proyectos Culturales
Proyectos Deportivos
Proyectos Educativos
Proyectos Urbanismo
Proyectos Industriales
Proyectos Residencial
Proyectos Sanitario-Asistenciales
Clientes
Contacto
Idioma